欢迎光临山东至简集成房屋有限公司!

服务热线:

18353133555

网站首页 >> 新闻动态 >>公司新闻 >> 新社区不锈钢岗亭入口岗亭景观节点施工图!
详细内容

新社区不锈钢岗亭入口岗亭景观节点施工图!

新社区不锈钢岗亭入口岗亭景观节点施工图!

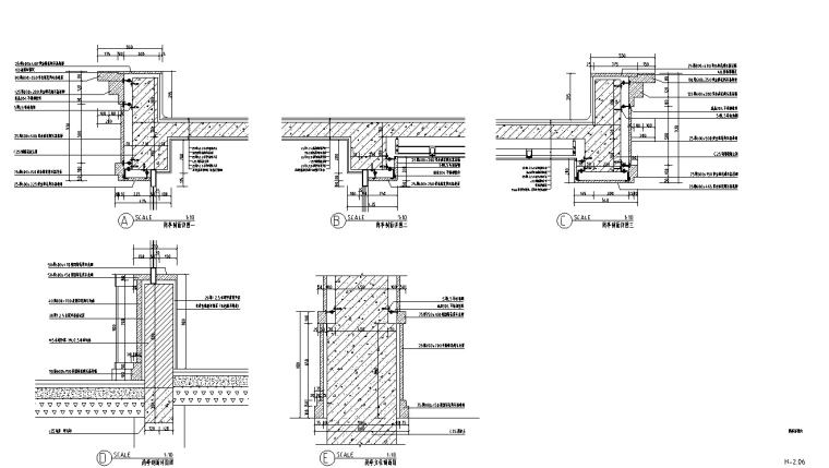
目录:岗亭剖面图、岗亭正立面图、岗亭正侧立面图、岗亭正剖面图、岗亭立柱剖面详图等,公司以下CAD图纸供参考。

1.jpg


版权所有2018 山东至简集成房屋有限公司

手机:18353133555

地址:济南市济北开发区    技术支持:济南海商网络

主营业务:不锈钢岗亭金属雕花板岗亭环保厕所环保卫生间金属雕花板

技术支持: 济南海商网络 | 管理登录
seo seo